电化学去毛刺技术参数及组成与布局
作者:长风电化学去毛刺技术部 | 来源:http://www.atlbasementsdecks.com | 浏览次数:
电化学去毛刺技术参数及组成与布局
中航长风电化学去毛刺技术参数及组成与布局
DJK6032A电化学去毛刺机主要技术参数和规格:
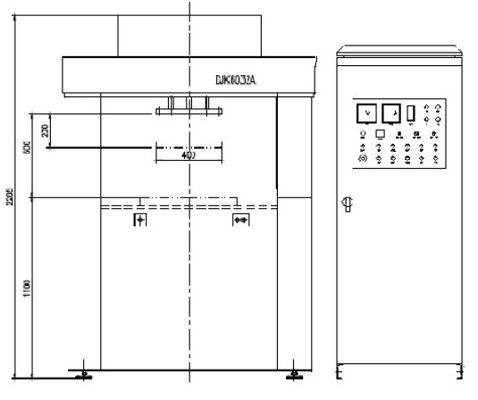
1、 工作台尺寸:600mm×320mm
2、 主轴行程:200mm
3、 主轴至工作台最大距离:500mm
4、 电解液槽容积: 1.6m3
5、 电源输出额定电压:DC24V
6、 电源最大输出电流:800A
7、压缩空气(现场提供):0.6 Mpa
8、输入电压、电流: 3相AC380V 50HZ 18KVA
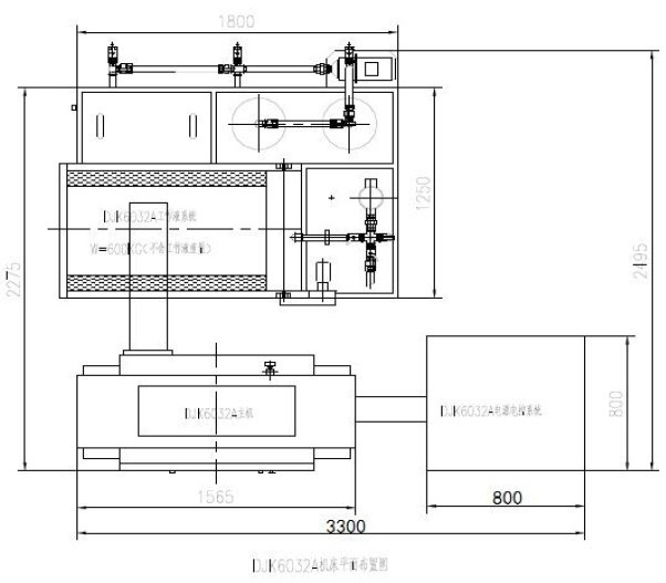
9、设备占地面积: 3300mm ×2495mm
DJK6032A电化学去毛刺设备组成及布局:
设备平面布置图:

设备外形图:

DJK6032A电化学去毛刺本设备主要由机床主机、电源电控系统、电解工作液系统、工具电极夹具单元(根据工件特殊配置)等组成。
苏州中航长风电化学去毛刺机产品检索网上地址:/productlist/qumaociji-1231.html
苏州中航长风数控科技有限公司专业生产电解、电化学去毛刺机床及专用设备,如需了解更多电解、电化学去毛刺机详细资料请与苏州中航长风数控科技有限公司联系。苏州中航长风数控科技有限公司提供电化学去毛刺机床,电解去毛刺机床技术服务,公司可根据客户特殊要求,量身定制各种电解,电化学加工专机,同时可为客户提供整套电加工解决方案。更多更详细去毛刺设备资料请登陆http://www.zhwedm.com http://www.atlbasementsdecks.com