中航长风电化学去毛刺机机械部分简介
作者:长风电化学去毛刺技术部 | 来源:http://www.atlbasementsdecks.com | 浏览次数:
中航长风电化学去毛刺机机械部分简介
电化学去毛刺机主机部分:
1、主机:
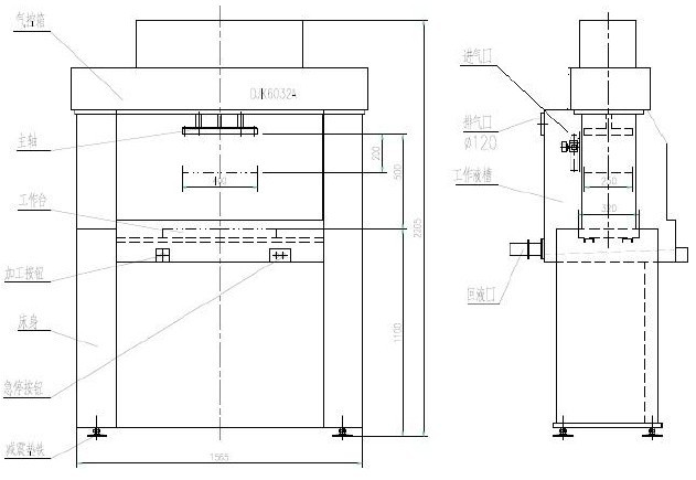
电化学去毛刺机主机外形见下图:

电化学去毛刺机主机采用全防腐钢板焊接结构,工作区域为全不锈钢制成,用花岗岩制成工作台置于机床床身上,耐腐蚀,绝缘性好。床身两侧为主柱,立柱支撑固定横梁,横梁上安置主轴部件和气控箱。

主轴结构如下图所示,采用了全防腐结构,用气控驱动,上下滑
动采用双导柱形式。
在电化学去毛刺机加工区域后侧为电解工作液进回液口。进液口通过软管与电解
工作液槽连通,回液口通过回液管使工作腔内的工作液回入电解液
系统内。
在电化学去毛刺机加工区域后上方备有空气抽风口,可与厂房通风管相联接,以
消除加工过程中由于电解工作液的流动可能产生的雾气。
苏州中航长风电化学去毛刺机产品检索网上地址:/productlist/qumaociji-1231.html
苏州中航长风数控科技有限公司专业生产电解、电化学去毛刺机床及专用设备,如需了解更多电解、电化学去毛刺机详细资料请与苏州中航长风数控科技有限公司联系。苏州中航长风数控科技有限公司提供电化学去毛刺机床,电解去毛刺机床技术服务,公司可根据客户特殊要求,量身定制各种电解,电化学加工专机,同时可为客户提供整套电加工解决方案。更多更详细去毛刺设备资料请登陆http://www.zhwedm.com http://www.atlbasementsdecks.com